Barbići: Kuća A3
Kvadratura: 92,69 m²
Cijena kvadratnog metra: 1.750,00 /m²
Ukupna cijena: 162.207,50
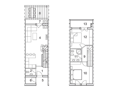
| KUĆA A3 | Prizemlje | |
|---|---|---|
| 1 | Ulaz - hodnik | 3.07 m² |
| 2 | WC | 2.04 m² |
| 3 | Stubište | 2.09 m² |
| 4 | Dnevni boravak + kuhinja | 26.27 m² |
| 5 | Natkriveni ulaz | 2.32 m² |
| 6 | Spremište | 2.04 m² |
| 7 | Natkrivena terasa | 2.03 m² |
| Kat | ||
|---|---|---|
| 8 | Terasa | 2.45 m² |
| 9 | Hodnik | 2.36 m² |
| 10 | Soba | 14.05 m² |
| 11 | Kupaonica | 4.13 m² |
| 12 | Soba | 12.22 m² |
| 13 | Natkriveni balkon | 3.92 m² |
| UKUPNO | 78.99 m² |
Stambeni dio
78.99 m²
78.99 m²
Pm (0.25)
20.35 m²
5.09 m²
Vrt i staza (0.10)
86.12 m²
8.61 m²
UKUPNO
92.69 m²